Зарегистрируем установку рефрижератора без демонтажа с гарантией в

Оформить и узаконить рефрижератор, получить новый СТС с внесенными изменениями и ездить по всей России, не боясь ГАИ
900 +
Мы помогли с регистрацией 900 + грузовых ТС
Переоборудование в рефрижератор

Последствия

Неузаконенное переоборудование приведет
Штрафстоянка
Штрафстоянка
Если вы не выполните требование предписания ваше ТС будет снято с учета
Штрафстоянка
Штраф
Проблемы со страховой
Проблемы с техосмотром

Этапы оформления рефрижератора в Тюмени

Результат
Разрабатываем проект заключения и согласовываем c лабораторией
Результат
Вы получаете официальное техническое заключение от лаборатории
01
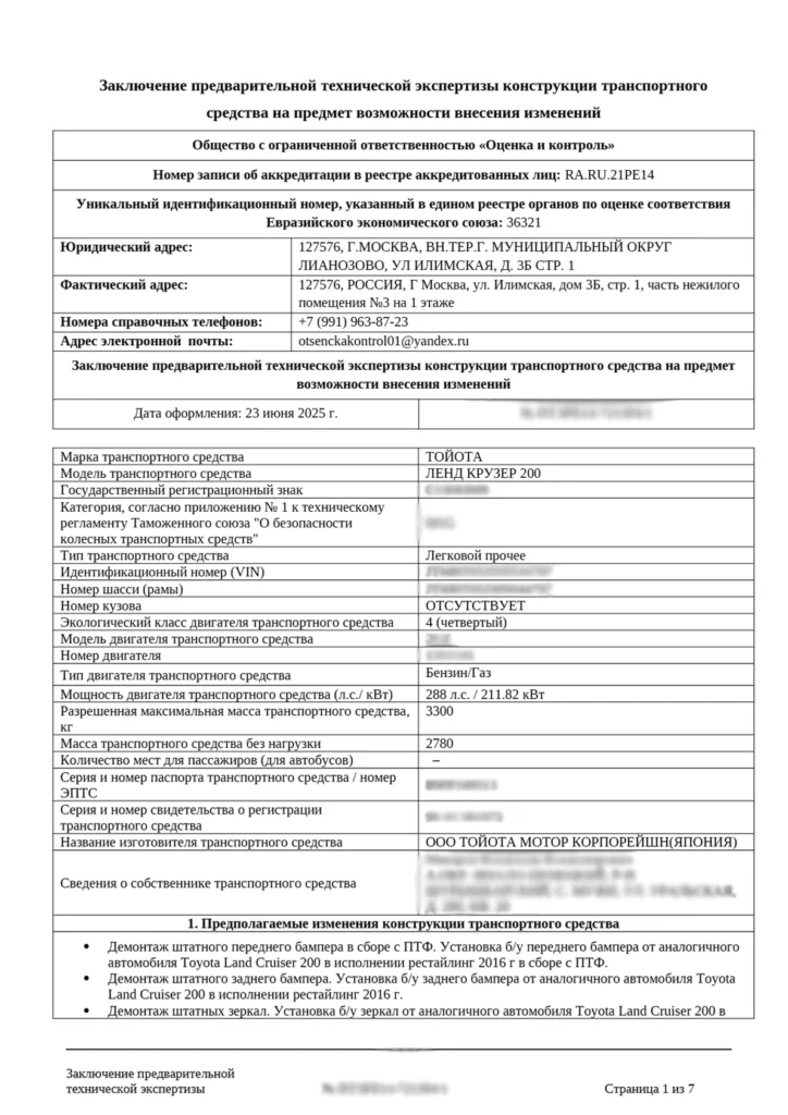
Заключение предварительной экспертизы
Результат
Вы получаете разрешение от технадзора на переоборудование. Мы можем взять этот этап на себя.
Требуется оплата пошлины - 1000 р.
02
Заявление в ГИБДД
Результат
На основании внесенных изменений и декларации-заявления от лицензирванного сервиса лаборатория осуществляет проверку безопасности вашей машины после переоборудования и выпускает протокол, в котором описаны все работы
03
Протокол проверки безопасности
Результат
Пункт техосмотра проверяет ваше ТС на основании протокола безопасности и нормативов. Вы получаете диагностическую карту, в которой указаны все изменения конструкции
04
Диагностическая карта
Результат
ГИБДД сверяет соответствие внесенных изменений, проверяет номерные агрегаты и выдает ССКТС - финальный документ об успешном переоборудовании.
Требуется оплата пошлины - 1000 р.
05
Свидетельство о соответствии
Результат
В МРЭО вы получаете новый СТС, также в ПТС появятся отметки о переоборудовании
Требуется оплата пошлины - от 500 р.
06
СТС

Немного цифр о компании

2300+
авто
- от Газели до
Хаммера
800+ легковых ТС
  • (внедорожники, ГБО, фаркопы, и пр.)
900+ грузовых ТС
  • (фургоны, цистерны, рефрижераторы и пр.)
800+ прочие ТС
  • (автобусы, специальные (эвакуаторы, ДОПОГ, КДМ и др.), прицепы)
92 %
клиентов проходят процедуру с первого раза. Остальные после внесения бесплатных правок с нашей стороны.
(По типовым изменениям процент отказа - 0%)
130 +
городов от Калининграда до Владивостока - география наших клиентов
120
срочных заказов выполнено. Когда выписано предписание на устранение и счет идет буквальнона часы
15 мин
  • Обрабатываем заявку - 15 минут
  • Выпускаем документ за 1 день

Документы для оформления рефрижератора в Тюмени

Документы, необходимые для прохождения процедуры
Документы для оформления рефрижератора в [city case="prepositional"]
1. ПТС
2. СТС
3. Паспорт или карточка организ.
4. СНИЛС
5. Пробег ТС
1. Заключение предварительной технической экспертизы
2. Заявление-декларация
3. Протокол безопасности
4. Копии сертификатов на компоненты
1. Разрешение на переоборудование
2. ССКТС
3. Новое СТС с внесенными изменениями
Документы
formback
Задайте нам все интересующие вопросы
Оставьте Ваш номер и мы поможем разобраться.
Нажимая «оставить заявку», я даю согласие на обработку персональных данных

А почему мы?

Несколько гарантий от нас
Технадзор нашел ошибку?
« Никаких ошибок »
Оплатим госпошлину и исправим документ за наш счет
Технадзор отказывает?
« Никаких отказов »
Вернем деньги или сделаем «под ключ».
Работаем с самыми сложными случаями
От 3 до 24 часов
« Держим срок »
Мы всегда делаем документы во время.

Как оформить рефрижератор в ГИБДД Тюмени: пошаговый алгоритм действий

Чтобы законно эксплуатировать транспорт с холодильным оборудованием в Тюмени, необходимо внести изменения в конструкцию ТС. Регистрация рефрижератора — это обязательная юридическая процедура. Согласно ТР ТС 018/2011, любая установка дополнительного оборудования, не предусмотренного заводом-изготовителем (включая ХОУ), требует проверки безопасности. Игнорирование этого правила влечет штраф по ст. 12.5 КоАП РФ и риск аннулирования учета автомобиля.

Назначение и технические требования

Рефрижератор предназначен для перевозки скоропортящихся грузов с поддержанием заданного температурного режима. Конструктивно это изотермический фургон (сэндвич-панели) и холодильно-отопительная установка (компрессор, конденсор, испаритель). Чтобы узаконить реф в ГИБДД, оборудование должно быть сертифицировано и надежно закреплено, не перекрывать обзор водителю и светотехнику.

В составе холодильного оборудование не должны использоваться вещества, разрушающие озоновый слой. Материалы должны соответствовать стандартам качества.

Порядок регистрации изменений (7 этапов)

Многие ошибаются в очередности действий. Запоминайте правильный порядок, чтобы вписать реф без лишних визитов в инстанции:

  1. Предварительная экспертиза. Получаем заключение в аккредитованной лаборатории о возможности установки ХОУ на ваше шасси.
  2. Разрешение ГИБДД. Подаем заявление в технадзор. Это можно сделать в Тюмени или через Госуслуги.
  3. Монтаж оборудования. Устанавливаем рефрижератор в сертифицированном сервисе. Обязательно берем заявление-декларацию об объеме работ.
  4. Протокол безопасности. Снова обращаемся в лабораторию. Эксперты проверяют монтаж на соответствие ТР ТС 018/2011 и выдают Протокол проверки безопасности конструкции.
  5. Техосмотр (ТО). Внимание! Диагностическую карту получаем строго после получения Протокола безопасности, уже с установленным оборудованием.
  6. Получение ССКТС. Сдаем пакет документов в ГИБДД и получаем Свидетельство о соответствии конструкции ТС.
  7. Финальная регистрация. Вносим особые отметки в ПТС и обновляем СТС.

На какие авто чаще всего ставим ХОУ

Процедура актуальна для любого коммерческого транспорта жителей Тюмени, но чаще всего мы работаем со следующими марками:

  • ГАЗ: ГАЗель (Next, Бизнес), Соболь;
  • LADA: Largus, Granta (ВИС);
  • Иномарки (LCV): Ford Transit, Hyundai (HD series, Porter), Isuzu, Hino, Iveco;
  • Грузовики: КАМАЗ, МАЗ, JAC.

Если этот процесс кажется вам сложным или вы не хотите тратить время на бюрократию — обращайтесь к нам. Мы поможем подготовить все документы «под ключ» и гарантированно зарегистрировать изменения в кратчайшие сроки.